We made history! Out of fire and smoke came inspiration, determination and generosity. Thank you, Mercer Island community, for making it happen.
Please join us for a Mayoral Ribbon-Cutting celebration in the front yard of the restored historic Teacher’s Cottage at 8635 SE 68th Street, Mercer Island on Wednesday, July 20, 2022, 4:30pm - 6pm. Our celebration will include VIP addresses, the unveiling of historical markings, and an opportunity to tour the renovated cottage.
Refreshments will be provided. We will also be offering tours of the Mercer Island Saddle Club stables and the newly placed donor recognition plaques.
Not to late to contribute to this historic cause! Carrots for Cottage ($100+up) level donors are invited to feed treats and visit select horses. Lakeview Schoolhouse donors ($500+up) are invited on a rare group tour of the historic schoolhouse building after the ceremonies.
Your generous donations will go towards paying down the $40,000 loan taken to finish restoring this piece of local history. Thank you!
Pioneer Park Youth Club | Land Trust
Suzanne Zahr, Inc. | Architect
Redman Construction | Builder
The history of Mercer Island is as fascinating as the state it resides in (did you know that Washington state first granted women the right to vote in 1883, and in 1910 included women’s suffrage in its constitution – a full ten years ahead of the nation?). Believe it or not, if you look around Mercer Island, you can see some genuine historical landmarks. Take for example the Lakeview (Sunnybeam) School. Here’s an excerpt from the Mercer Island Historical Society’s website:
In 1918, King County School District No. 191, which included Mercer Island, voted to issue local improvement bonds to build Lakeview School, replacing the original south end building (which seated only nine students, according to county superintendent records). The new school featured well-lighted classrooms, a projecting portico, and an ample school yard. To attract teachers to the remote location, the district also built a small teachers' cottage on the grounds. Lakeview School is one of the few in the state to have retained the original teacher's cottage. Similar structures once numbered in the hundreds, reflecting a progressive reform advocated during the tenure (1913-1928) of State School Superintendent Josephine Preston, who made Washington a national leader in the construction of rural teacher's cottages.
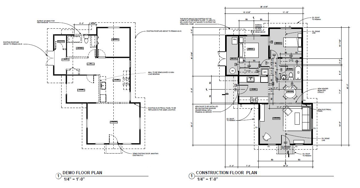
Lakeview School Teacher’s Cottage Remodel Plans by Suzanne Zahr, Inc.
Unfortunately, this historic teacher’s cottage next to the Lakeview School and Mercer Island Saddle Club suffered a minor kitchen fire over a year ago. It has remained unoccupied since and is in need of restoration. The SZ Team contributed their architectural design services towards the interior remodel and permitting of this cottage, while maintaining it’s exterior envelope intact. The hope is to breathe new life into this historic structure and have it serve as a caretaker’s cottage for School and Saddle Club, under the oversight of the Pioneer Park Youth Club (PPYC).
Below is an exclusive promotion listed through the MInext campaign:
Though the Mercer Island Saddle Club is currently closed to the general public, for a suggested donation of $50 (or more), you’ll receive a bag of carrots to feed our horses during a scheduled visit (masks required). Your generous donations will go towards the restoration of the historic Teacher’s Cottage.
Visits between January – August, 2021 to be scheduled ahead of time by emailing visit@misaddleclub.org.
Another fun fact, per the MI Historical Society: Small passenger boats were the first way to get back and forth to the Island. As the automobile became available the need developed for car ferries. A main auto dock was at Roanoke Landing, located on a northwest point of the island, built around 1900. Did you know that the last and largest of the ferries to serve Island was the steamer ‘Mercer’. It was put in service in 1938, and ran until 1940 when the first floating bridge to Seattle was completed. Shortly after that the car ferry dock was removed. The marker is located at the end of Roanoke Way, not far from the historic Roanoke Inn.
